Voci di Menu

Immobiliare Monti

Geom. Matteo Monti
Tel 0182 64.61.99
Cell 328 40.04.203
info@immobiliaremonti.com

Cerca la tua casa ideale

Centralissimo appartamento all’ultimo piano (Rif. 15)

Prezzo: € 310.000
ALASSIO - Appartamento - 66M²
EPI: APE CODICE IDENTIFICATIVO 0720263871 IPE 119,8886 KWh/mq CLASSE D D
rif.15

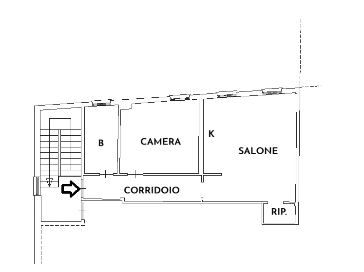
In posizione centrale a soli 250 metri dal mare proponiamo in vendita questo ampio bilocale ristrutturato e comprensivo di arredi. L’immobile è posto al quarto ed ultimo piano di stabile ben curato e servito da ascensore. La casa ricopre una superficie di 66 mq così suddivisa: ingresso su corridoio/disimpegno, ampio salone con cucina a vista dotato di doppia finestra, un comodo ripostiglio, una camera da letto matrimoniale ed infine un grande bagno finestrato. L’alloggio è dotato di impianto di riscaldamento autonomo con calderina alimentata a gas metano, inoltre è presente l’impianto di climatizzazione. Ottima opportunità, centralissima, con vista aperta sulla collina a pochi passi dalle spiagge.

  • Contratto: Vendita
  • Tipologia Locale: Bilocale
  • M²: 66
  • Classe energetica: D
  • Piano: 4
  • Numero piani: 4
  • Anno di costruzione: 1960
  • Risc. autonomo
  • Climatizzatore
  • Ascensore
  • Ammobiliato
  • Ristrutturato

Esposizione

  • Nord
  • Est

Nelle vicinanze

  • Palestra
  • Campi da tennis
  • Spiaggia
  • Supermarket
  • Fermata Bus
  • Stazione
Edinet - Realizzazione Siti Internet