Voci di Menu

Immobiliare Monti

Geom. Matteo Monti
Tel 0182 64.61.99
Cell 328 40.04.203
info@immobiliaremonti.com

Cerca la tua casa ideale

Grazioso trilocale a soli 150 metri dal mare (Rif. 03)

Prezzo: € 430.000
ALASSIO - Appartamento - 62M²
EPI: APE CODICE IDENTIFICATIVO 07202612523 IPE 293,4468 KWh/mq CLASSE F F
rif.03

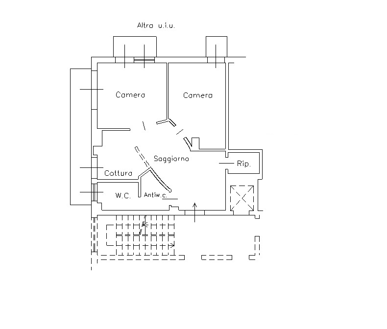
In via Paolo Ferreri, in posizione tranquilla e interna a soli 150 metri dal mare proponiamo in vendita questo grazioso appartamento posto al piano secondo servito da ascensore di stabile signorile e in ottimo stato edificato nei primi anni settanta. L’alloggio si compone di ampio ingresso con su soggiorno con zona cottura a vista, una camera matrimoniale, una seconda stanza attualmente arredata come salotto, bagno finestrato, comodo ripostiglio, una grande balconata e due balconi più piccoli. L’immobile è dotato di impianto di riscaldamento autonomo con calderina alimentata a gas metano, inoltre è presente l’impianto di climatizzazione. Appartamento ubicato in posizione tranquilla, con doppia esposizione e vista aperta.

  • Contratto: Vendita
  • Tipologia Locale: Trilocale
  • M²: 62
  • Classe energetica: F
  • Piano: 2
  • Numero piani: 4
  • Anno di costruzione: 1970
  • Balcone
  • Risc. autonomo
  • Climatizzatore
  • Ascensore
  • Ammobiliato
  • Ristrutturato

Esposizione

  • Nord
  • Est

Nelle vicinanze

  • Palestra
  • Spiaggia
  • Supermarket
  • Fermata Bus
Edinet - Realizzazione Siti Internet